Espace propriétaire
fr

Votre recherche

Sous-compromis
Landser (68440)

4 pièces - 81,05 m²

T4 avec terrasse LANDSER

349 500 €
Ref : 227.B12
Découvrir le bien

Venez découvrir ce bel appartement T4 de plus de 80m2 situé dans une petite résidence situé à LANDSER, proche frontière SUISSE ! 

Il se compose comme suit : entrée avec rangement intégrés (penderie + étagère), grande pièce de vie orienté EST, 3 chambres, une salle de bains, WC séparé.

Des stationnements sont disponible à l'extérieur ou en sous-sol. 

Disponible rapidement. Faible charges de copropriété. Ascenseur qui dessert tout les niveaux, normes PMR. 

Contactez nous pour organiser une visite.

TRAD_ZEPHYR_Caracteristique TRAD_ZEPHYR_Valeurs
Code postal 68440
Nombre de chambre(s) 3
Nombre de pièces 4
Etage 1
Nombre de niveaux 1
Ascenseur OUI
TRAD_ZEPHYR_Caracteristique TRAD_ZEPHYR_Valeurs
Nb de salle de bains 1
Cuisine Américaine
Mode de chauffage Gaz
Type de chauffage Au sol
Format de chauffage Individuel
Interphone OUI
Visiophone OUI
Terrasse OUI
Cave NON
Année de construction 2025
TRAD_ZEPHYR_Caracteristique TRAD_ZEPHYR_Valeurs
Copropriété OUI
Lot n° 12
plan de sauvegarde NON
statut du syndic pas de procédure en cours
TRAD_ZEPHYR_Caracteristique TRAD_ZEPHYR_Valeurs
Prix de vente 349 500 €
Les honoraires d'agence seront intégralement à la charge du vendeur  
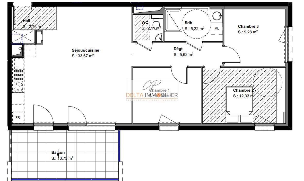
Rez de chaussée
chambre 10.06 m²

chambre 12.33 m²

chambre 9.28 m²

salon/sejour 33.67 m²

salle de bain 5.22 m²

DPE GES
  • Commerces et santé
  • Loisirs
  • Ecoles
  • Transports
  • Pratique
Contacter pour ce bien
L'agence
Téléphone 0636679483
Adresse
120 rue de l'Île de Napoléon 68170 Rixheim

* Champ obligatoire

Les informations recueillies sur ce formulaire sont enregistrées dans un fichier informatisé par La Boite Immo agissant comme Sous-traitant du traitement pour la gestion de la clientèle/prospects de l'Agence / du Réseau qui reste Responsable du Traitement de vos Données personnelles. La base légale du traitement repose sur l'intérêt légitime de l'Agence / du Réseau. Elles sont conservées jusqu'à demande de suppression et sont destinées à l'Agence / au Réseau. Conformément à la loi « informatique et libertés », vous disposez des droits d’accès, de rectification, d’effacement, d’opposition, de limitation et de portabilité de vos données. Vous pouvez retirer votre consentement à tout moment en contactant directement l’Agence / Le Réseau. Consultez le site https://cnil.fr/fr pour plus d’informations sur vos droits. Si vous estimez, après avoir contacté l'Agence / le Réseau, que vos droits « Informatique et Libertés » ne sont pas respectés, vous pouvez adresser une réclamation à la CNIL. Nous vous informons de l’existence de la liste d'opposition au démarchage téléphonique « Bloctel », sur laquelle vous pouvez vous inscrire ici : https://www.bloctel.gouv.fr Dans le cadre de la protection des Données personnelles, nous vous invitons à ne pas inscrire de Données sensibles dans le champ de saisie libre.
Ce site est protégé par reCAPTCHA, les Politiques de Confidentialité et les Conditions d'Utilisation de Google s'appliquent.

Découvrir nos outils